Recupero ex Cassa Mutua Artigiani di Brindisi
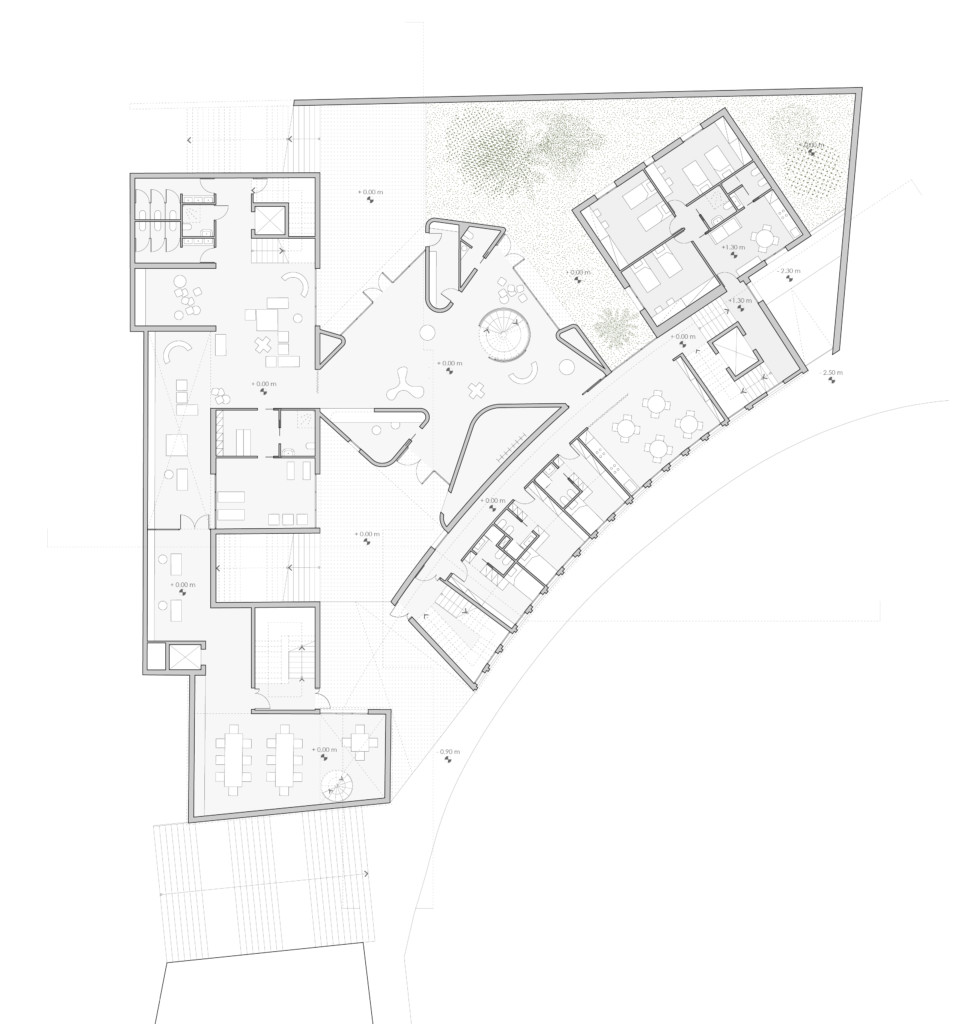
Il progetto di recupero si è concentrato sulla volontà di trasformare un volume architettonico massivo e chiuso nei confronti delle relazioni urbane e sociali, in un sistema insediativo permeato da nuovi flussi e privato di quella rigidità morfologica che contrasta con le necessità espresse nel bando di concorso. Per quanto descritto sopra, la scelta progettuale è stata quella di dividere le due ali principali del sistema esistente, aprendo un varco da Via Nazario Sauro e inserendo due rampe di scale sul lato di Via Federico II. Queste azioni hanno permesso di definire un nucleo centrale, nell’attuale blocco esistente, intorno al quale gravitano tutti gli spazi e le funzioni del progetto. Il nucleo, cuore pulsante del sistema progettuale, diventa quindi hall di ingresso, terrazza e luogo di aggregazione e scambio. Da qui si diramano tutte le funzioni, prima “pubbliche” poi più private, in un percorso che dal punto di massima condivisione, il nucleo, muta radialmente, incontrando spazi sempre più privati, quali gli alloggi. Analizzando i flussi presenti allo stato attuale si è percepito un forte senso tangenziale all’edificio. La rigidezza dettata dell’assetto monolitico del manufatto esistente, costituisce oggi una barriera che scherma i flussi su Via Nazario Sauro e Federico II, rendendo l’ex Cassa Artigiani un edificio repulsore nei confronti della comunità. Per invertire questa tendenza si è ritenuto necessario definire un elemento che polarizzasse all’interno del lotto di progetto i flussi tangenti. Siamo partiti quindi dall’attribuire al volume centrale del livello inferiore, racchiuso tra le due ali principali, la funzione di nucleo e punto cardine dell’intero sistema, rendendolo l’accesso principale di tutta l’opera. In questo processo, i flussi prima tangenziali e ora indirizzati all’interno del lotto, spaccano l’edificio in quelli che originariamente erano gli ingressi alla struttura e che ora diventano ingressi ad un nuovo spazio urbano. La decisione di eliminare completamente il vano scale esistente che univa i due blocchi, definisce una nuova piazza pubblica e conferisce respiro al blocco di ingresso. Grazie a questa azione è stato possibile inserire delle rampe che raggiungono la quota di accesso al piano terra, notevolmente più alta del piano strada, nell’ottica di rendere l’intero complesso estremamente permeabile e accessibile anche da persone con disabilità motorie.
Progetto: Recupero ex Cassa Mutua Artigiani di Brindisi
Location: Brindisi, Br
Stato: Finalista concorso internazionale
Anno: 2022












